residential TO LET

Harmont House, Harley Street, Marylebone Village W1

Let Agreed
  • PRICE
    £1,450 per week
  • FURNISHINGS
    Furnished
  • DEPOSIT
    £8,700
  • EPC
    (View Chart >)
  • LOCAL AUTHORITY
    City of Westminster
  • COUNCIL TAX BAND
    G

DESCRIPTION

Fabulous sixth floor penthouse in this portered building ideally situated a few minutes’ walk from Marylebone High Street with it`s fabulous restaurants and bars and high end boutiques.

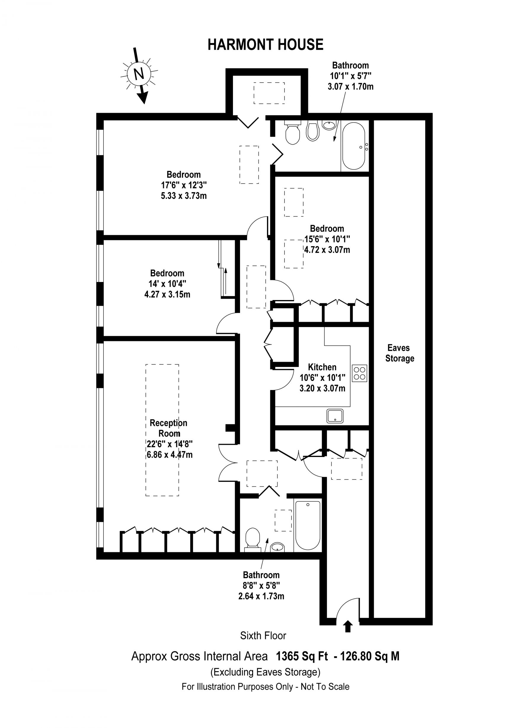
The accommodation comprises of three bedrooms, two bathrooms, reception room and kitchen. The building is located on the East side of Harley Street at the junction with Queen Anne Street. Both Oxford Circus and Bond Street underground stations are within close proximity. The shopping facilities of Marylebone high street and Oxford Street together with the open spaces of Regent Park are also nearby. Resident Parking permit is available subject to usual consent.

AMENITIES

3 Bedrooms
2 Bathrooms
Porter
Passenger Lift
Penthouse
Furnished

Request viewing

PROPERTY REFERENCE: L3681

"*" indicates required fields

MM slash DD slash YYYY
This field is hidden when viewing the form

Map

FLOOR PLAN