healthcare TO LET

Weymouth Street, Marylebone, London W1G

Available
  • RENT
    £140,000 per annum
  • SERVICE CHARGE
    approx £22,879.72 per annum
  • EPC
    (View Chart >)
  • LOCAL AUTHORITY
    City of Westminster
  • BUSINESS RATES
    Approx £24,038

DESCRIPTION

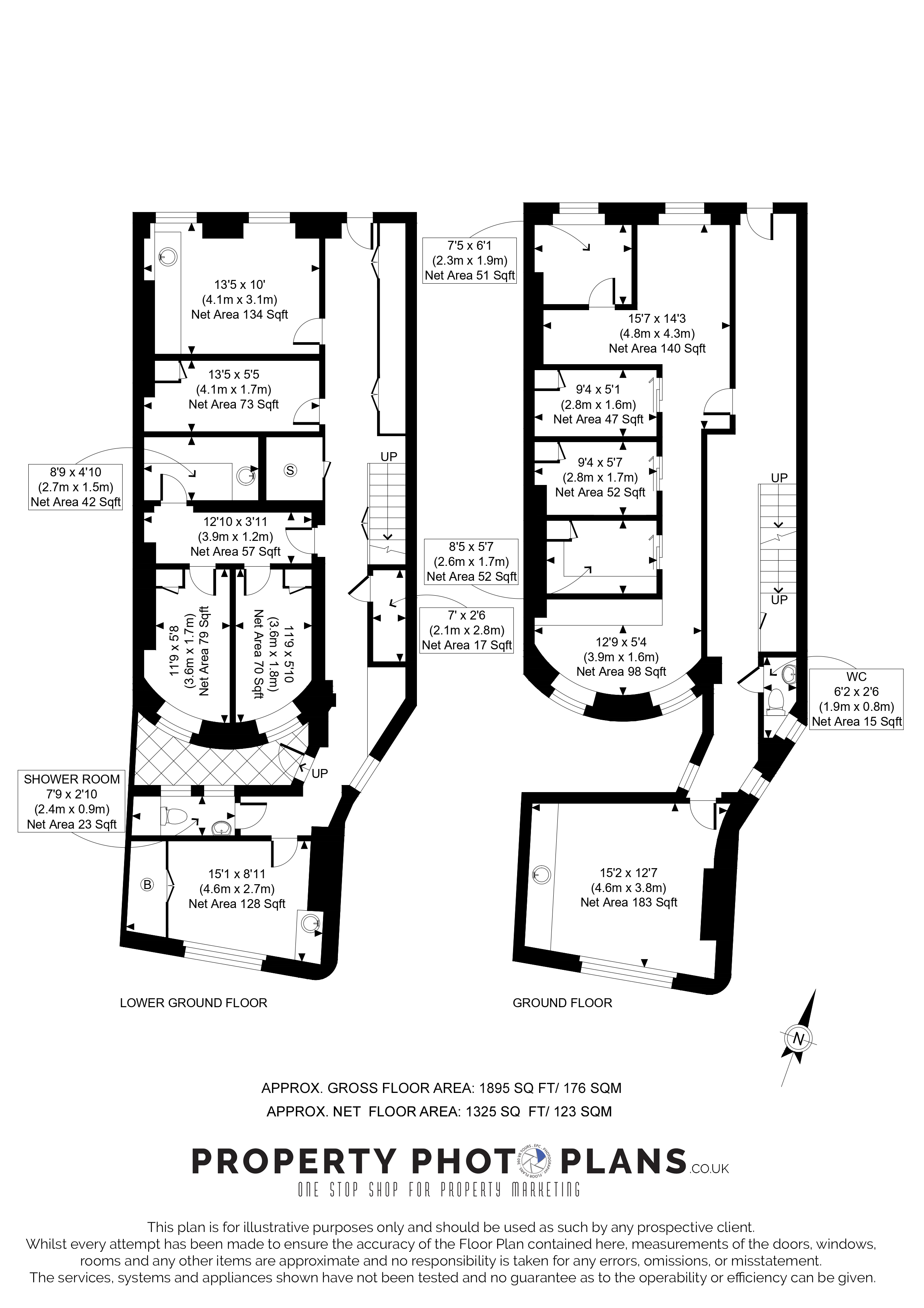
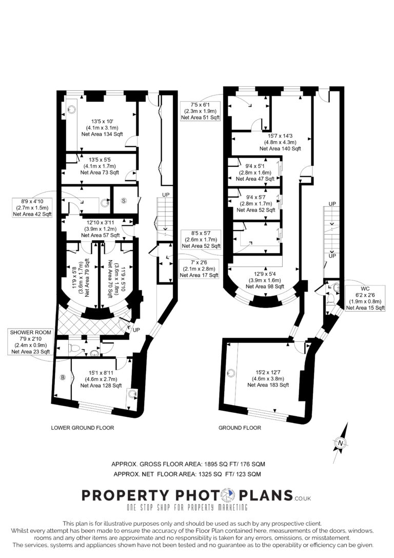
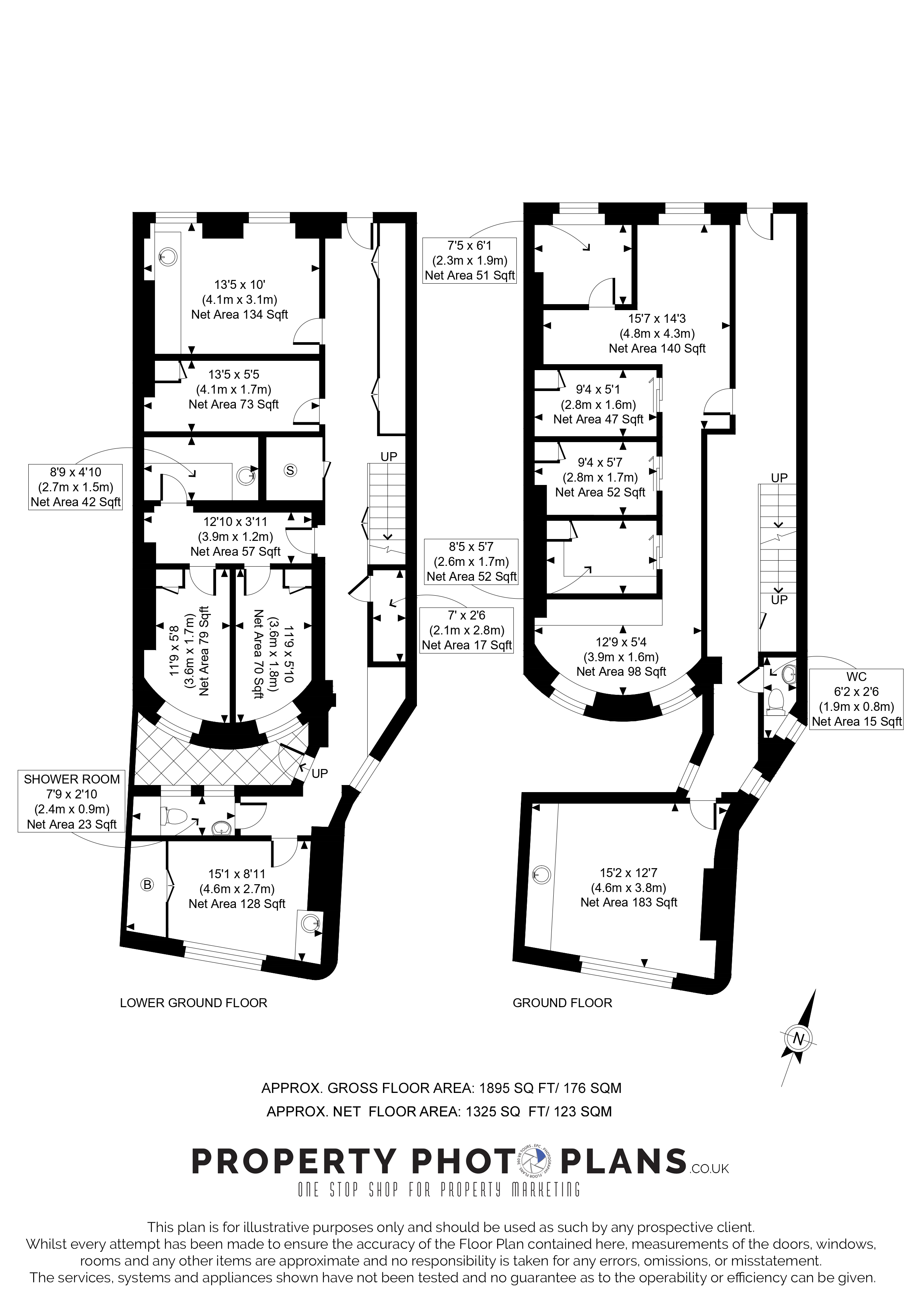
This medical suite located on the ground and lower ground floor having an area approximately 1,985 q ft ( 176 sq m).

This listed Grade II building designed by award winning architects Manalo and White has recently undergone a complete refurbishment with CAT 6A cabling throughout, heating and comfort cooling, video entry in each room.

The building is located on Weymouth Street in the centre of the world’s most renowned medical district moments from London Clinic, Harley Street Clinic, Princess Grace Hospital and Kind Edward VII Hospital. Moments from Marylebone High Street. Bond Street and Baker Street underground stations together with access to the A40/M40 are within close proximity.

Lease expiring 5th February 2033

Break: 6th February 2028

Rent Review: 6th February 2028

AMENITIES

Ground and Lower Ground Floor
Sympathetically refurbished to a high spec
In the heart of the medical district
1,985 q ft ( 176 sq m)
EPC: C

Request viewing

PROPERTY REFERENCE: M654631

"*" indicates required fields

MM slash DD slash YYYY
This field is hidden when viewing the form

Map

FLOOR PLAN

More Images